Σημαντήρας πλευρικός FLC2600

flc2600-lateral-buoy-x.jpg

 

Σημαντήρας πλευρικός FLC2600

Υλικά υψηλής ποιότητας

Κατασκευή, σημεία ανύψωσης και αγκυροβόλησης: Γαλβανισμένος εν θερμώ χάλυβας S235
Υλικό σημαδούρας: Υψηλής πυκνότητας πολυαιθυλένιο ανθεκτικό στην υπεριώδη ακτινοβολία, πάχους 22mm
Κατάρτι: Θαλάσσιο αλουμίνιο 5083/5086
Χρώματα: Χρωστικές ενσωματωμένες απευθείας στο πολυαιθυλένιο κατά την περιστροφική χύτευση ώστε να μην απαιτείται καθόλου βάψιμο.
Έρμα: Χυτοσίδηρος
Σημάδι κορυφής: Θαλάσιο αλουμίνιο 5083/5086
Ανακλαστήρας ραντάρ: Θαλάσιο αλουμίνιο 5083/5086
Φιλικό προς το περιβάλλον: Ανακυκλώσιμο πολυαιθυλένιο. Χωρίς βαρέα μέταλλα. Χωρίς επιπτώσεις στο περιβάλλον.

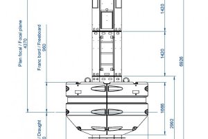
Γενικές προδιαγραφές FLC2600

Διάμετρος

2600

Όγκος

5900

Βύθισμα

1850

Έξαλα

960

Συνολικό ύψος (με σημάδι κορυφής)

6940

Κατάρτι

2834

Βάρος με έρμα

1814

Ορατή επιφάνεια

6.4

Εστιακό επίπεδο

4370